+16
Marseille (13011)

Appartement 3 pièce(s) 2 chambre(s) 96 m²

1
Balcon
Ascenseur
Réf KB - 1821

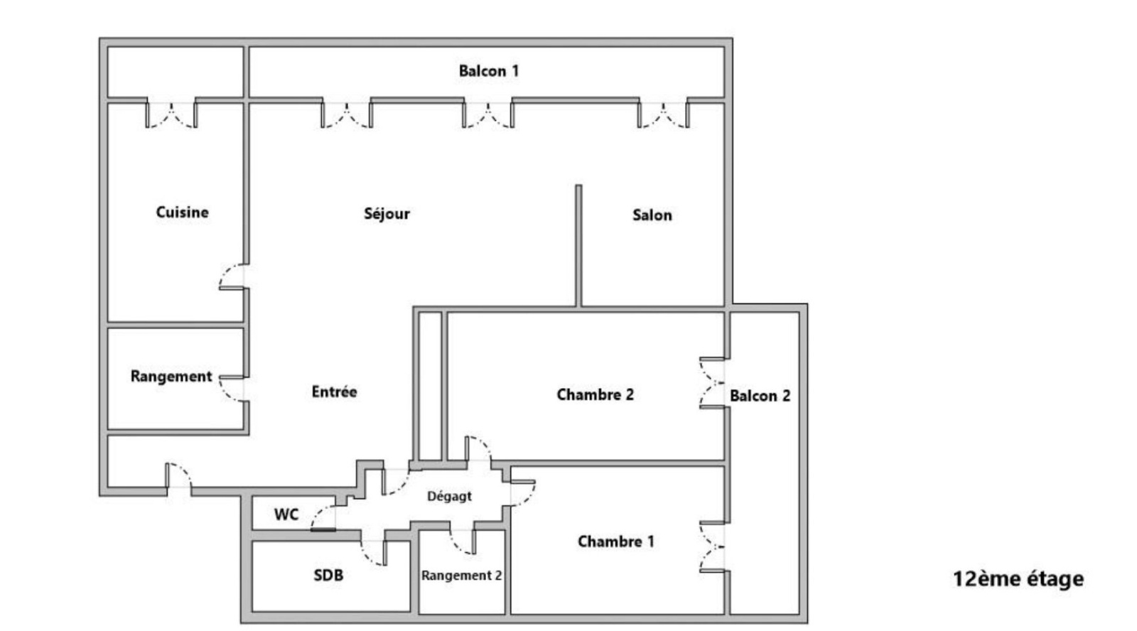
- Appartement à rénover St Loup village / La Pomme, appartement de 96 m2 à rénover avec grands balcons et vues dégagées. Au coeur d'un magnifique parc arborée et sécurisée, à proximité du lycée Marcel Pagnol et du lycée professionnel René Caillé : venez découvrir cette résidence parfaitement entretenue. Niché au 12 ème étage avec ascenseurs, cet appartement de 96m2 est à rénover. Il offre un séjour largement ouvert sur un grand balcon exposé sud/est, deux chambres avec bacon et vue dégagée exposée sud/ouest, une cuisine indépendante avec loggia, une salle de bains et un wc séparée. Stationnement libre dans la résidence sécurisée avec portail automatique. Foncier : 1512 € Charges : 118 €/mois (chauffage, ascenseurs, entretien des espaces verts...) Renseignements : Karine BINISTI : 06 11 05 55 03 karine.binisti@kwfrance.com RSAC : 879249761


Les informations sur les risques auxquels ce bien est exposé sont disponibles sur le site Géorisques

Bilan énergétique

Diagnostics énergetiques
A propos de ce bien Caractéristiques de ce bien
  • Surface 96 m²
  • carrez 95,89 m²
  • 2 chambre(s)
  • 1 salle(s) de bain
  • cuisine séparée
  • Chauffage individuel : autre (autre)
  • 1 parking(s)
  • 12ème étage
  • 20 étage(s)
  • ascenseur
  • balcon

Composition

Composition de ce bien

Rez-de-chaussée

  • dégagement 2.71 m²
  • dégagement 2.71 m²
  • dégagement 2.71 m²
  • dégagement 2.71 m²
  • dégagement 2.71 m²
  • dégagement 2.71 m²
  • dégagement 2.71 m²
  • dégagement 2.71 m²
  • dégagement 2.71 m²
  • dégagement 2.71 m²
  • dégagement 2.71 m²

Financier

Informations financières
Les honoraires d'agence seront intégralement à la charge du vendeur  
Charges 1 419 €
Taxe foncière annuelle 1 512 €

Autour du bien

Découvrez le quartier
  • Commerces et santé
  • Loisirs
  • Ecoles
  • Transports
  • Pratique

Simulation

Calcul des mensualités
* Champs obligatoires
TEAM MARSEILLE PRADO-EUROMED Agence