+4
Marseille (13003)

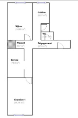
Appartement 3 pièce(s) 1 chambre(s) 55.26 m²

1
Réf LS - 2713
À vendre : dans le 3e arrondissement de Marseille (13003), venez découvrir cet appartement de 3 pièces de 55,26 m². Il est situé au 3e étage d'un immeuble de cinq étages. Il compte une chambre et une cuisine indépendante. Une cave de 6 m² lui est associée. Il y a des écoles de tous niveaux à moins de 10 minutes à pied. Côté transports, on trouve dans un rayon de 1 km 17 lignes de bus, la gare Marseille Saint-Charles, deux lignes de métro (M2 et M1) ainsi que les lignes de tramway T3 et T2. Quatre autoroutes sont accessibles à moins de 4 km. Pour vos loisirs, vous pourrez compter sur le cinéma Les Varietes tout comme sur un théâtre à moins de 10 minutes à pied. Il y a aussi des restaurants, des commerces, des boulangeries, des supermarchés, des épiceries et des boucheries. Découvrez toutes les originalités de cet appartement en vente en prenant RDV avec notre agence KW PRADO.

Bilan énergétique

Diagnostics énergetiques
A propos de ce bien Caractéristiques de ce bien
  • Surface 55,26 m²
  • 1 chambre(s)
  • 1 salle(s) de bain
  • cuisine séparée
  • Chauffage autre : autre (electrique)
  • 3ème étage
  • 5 étage(s)
  • cave

Financier

Informations financières
Les honoraires d'agence seront intégralement à la charge du vendeur  
Charges 1 000 €
Taxe foncière annuelle 700 €

Autour du bien

Découvrez le quartier
  • Commerces et santé
  • Loisirs
  • Ecoles
  • Transports
  • Pratique

Simulation

Calcul des mensualités
* Champs obligatoires
TEAM MARSEILLE PRADO-EUROMED Agence