+16
Marseille (13009)

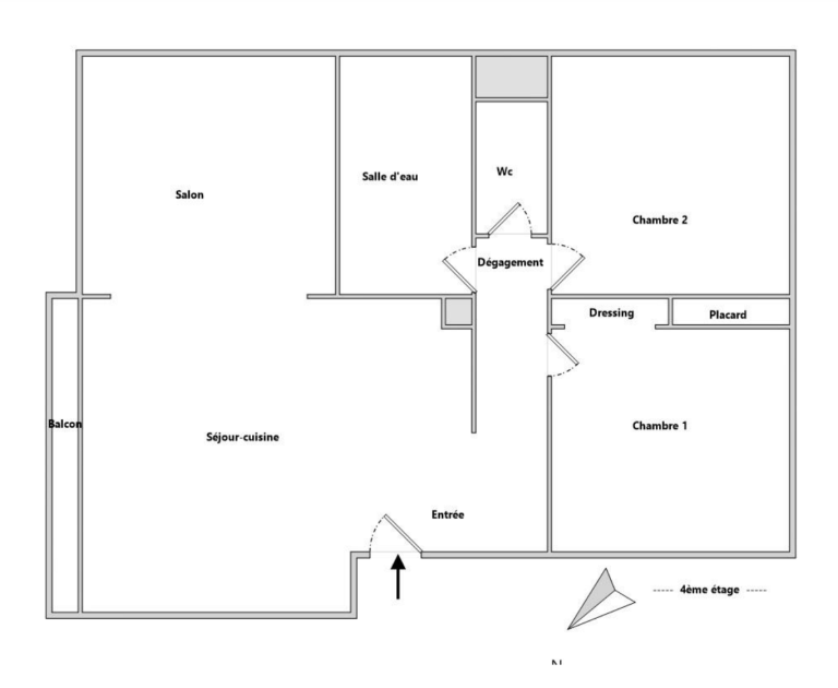
Appartement 3 pièce(s) 2 chambre(s) 67.36 m²

1
Balcon
2
Réf JR-2514

Appartement traversant de 3 pièces et Balcon au Dernier étage En plein coeur de Mazargues, dans une résidence arborée très bien entretenue, (isolation et ravalement de façade récents). À proximité immédiate des commerces, crèches et transports. Cet appartement de 3 pièces de 62 m² à la double exposition est très lumineux grâce à ses vues dégagées. Il se compose d'une cuisine aménagée ouverte sur une grande pièce de vie donnant sur un balcon exposé plein sud. Un couloir qui dessert deux grandes chambres, une salle de bain et des toilettes séparés. Pas de vis à vis. Placement libre dans la résidence. Cave de 4m2. Charges: 105€/mois Taxe Foncière: 867€ Ce bien vous est proposé par Julie ROBINI Pour plus d'informations: 06.49.82.69.03 julie.robini@kwfrance.com 850 348 533 R.S.A.C. Marseille


Les informations sur les risques auxquels ce bien est exposé sont disponibles sur le site Géorisques

Bilan énergétique

Diagnostics énergetiques
A propos de ce bien Caractéristiques de ce bien
  • Surface 67,36 m²
  • carrez 62,48 m²
  • 2 chambre(s)
  • 1 salle(s) de bain
  • construit en 1960
  • cuisine aménagée
  • 2 parking(s)
  • 4ème étage
  • 4 étage(s)
  • balcon

Financier

Informations financières
Les honoraires d'agence seront intégralement à la charge du vendeur  
Charges 1 260 €

Autour du bien

Découvrez le quartier
  • Commerces et santé
  • Loisirs
  • Ecoles
  • Transports
  • Pratique

Simulation

Calcul des mensualités
* Champs obligatoires
TEAM MARSEILLE PRADO-EUROMED Agence