+30
Marseille (13008)

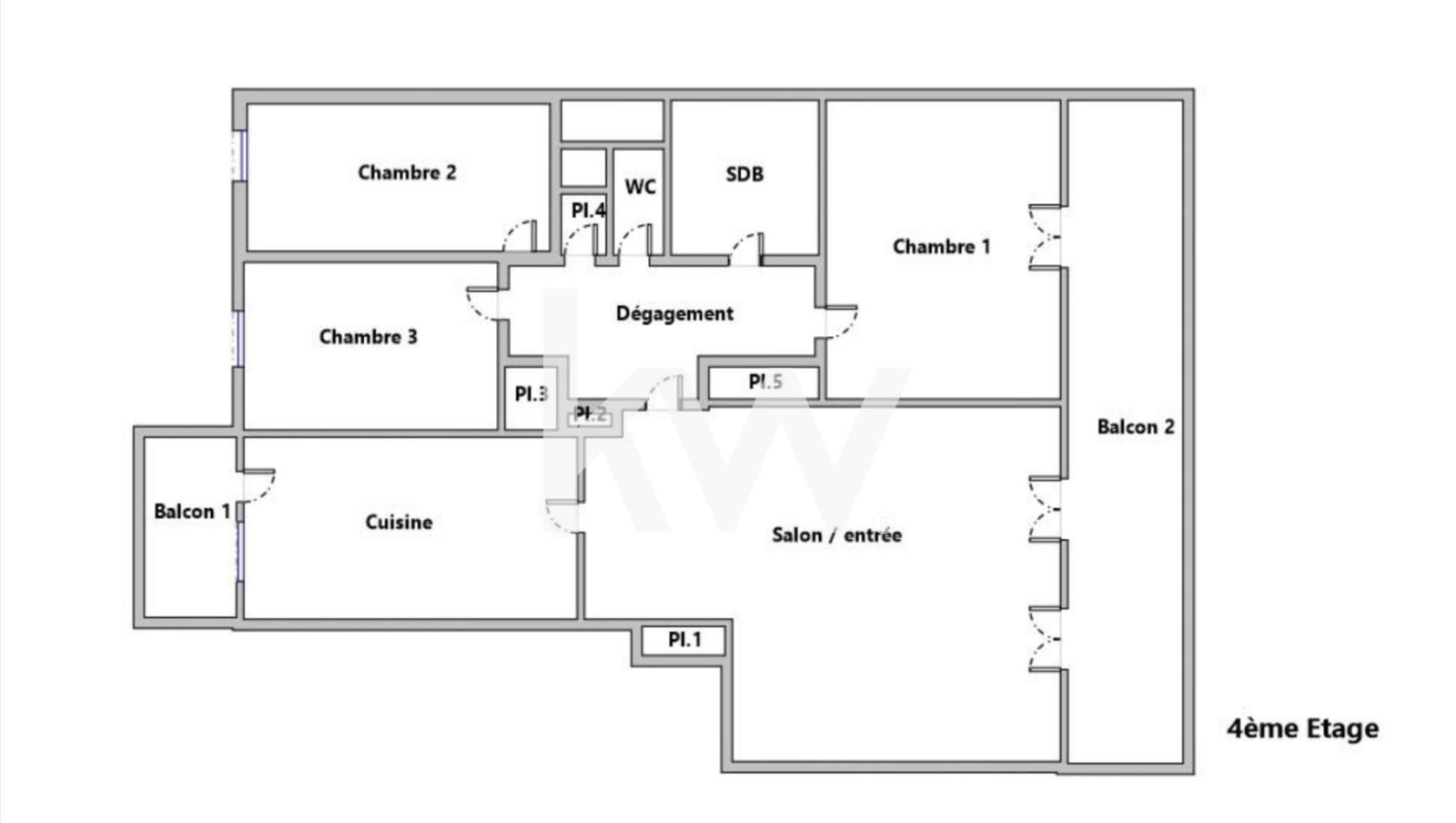
Appartement 4 pièce(s) 3 chambre(s) 93.47 m²

1
Balcon
Ascenseur
Réf KB-1538

Résidence Prado Parc 13008 Marseille - Keller Williams Prado, vous propose à la vente dans une résidence sécurisée arborée avec stationnement, un appartement de type 4 à rafraichir. Dans le secteur privilégié du Prado, à proximité du Parc Borély et des commodités, cet appartement traversant bénéficie d'un balcon/terrasse de 13m2 exposé au sud. Calme et lumineux, cet appartement dispose de 3 chambres, d'une cuisine aménagée avec loggia, d'une salle de bains et de toilettes indépendants. Ce bien dispose de nombreux placards et d'une cave. Stationnement libre dans la résidence. Plages, parc, commerces, transports et établissements scolaires (lycée Provence) à proximité. Charges : 298 €/mois Foncier : 2203 € Renseignements : Karine BINISTI 06 11 05 55 03 / karine.binisti@kwfrance.com RSAC 805053667 Réf. KB-1538


Les informations sur les risques auxquels ce bien est exposé sont disponibles sur le site Géorisques

Bilan énergétique

Diagnostics énergetiques
A propos de ce bien Caractéristiques de ce bien
  • Surface 93,47 m²
  • 3 chambre(s)
  • 1 salle(s) de bain
  • Chauffage autre : au sol (autre)
  • 1 parking(s)
  • 4ème étage
  • 9 étage(s)
  • ascenseur
  • cave
  • balcon
  • interphone

Composition

Composition de ce bien

Rez-de-chaussée

  • dégagement placards 8 m²
  • dégagement placards 8 m²
  • dégagement placards 8 m²
  • dégagement placards 8 m²
  • dégagement placards 8 m²
  • dégagement placards 8 m²
  • dégagement placards 8 m²
  • dégagement placards 8 m²
  • dégagement placards 8 m²
  • dégagement placards 8 m²
  • dégagement placards 8 m²

Financier

Informations financières
Les honoraires d'agence seront intégralement à la charge du vendeur  
Charges 3 582 €
Taxe foncière annuelle 2 203 €

Autour du bien

Découvrez le quartier
  • Commerces et santé
  • Loisirs
  • Ecoles
  • Transports
  • Pratique

Simulation

Calcul des mensualités
* Champs obligatoires
TEAM MARSEILLE PRADO-EUROMED Agence