+6
Marseille (13013)

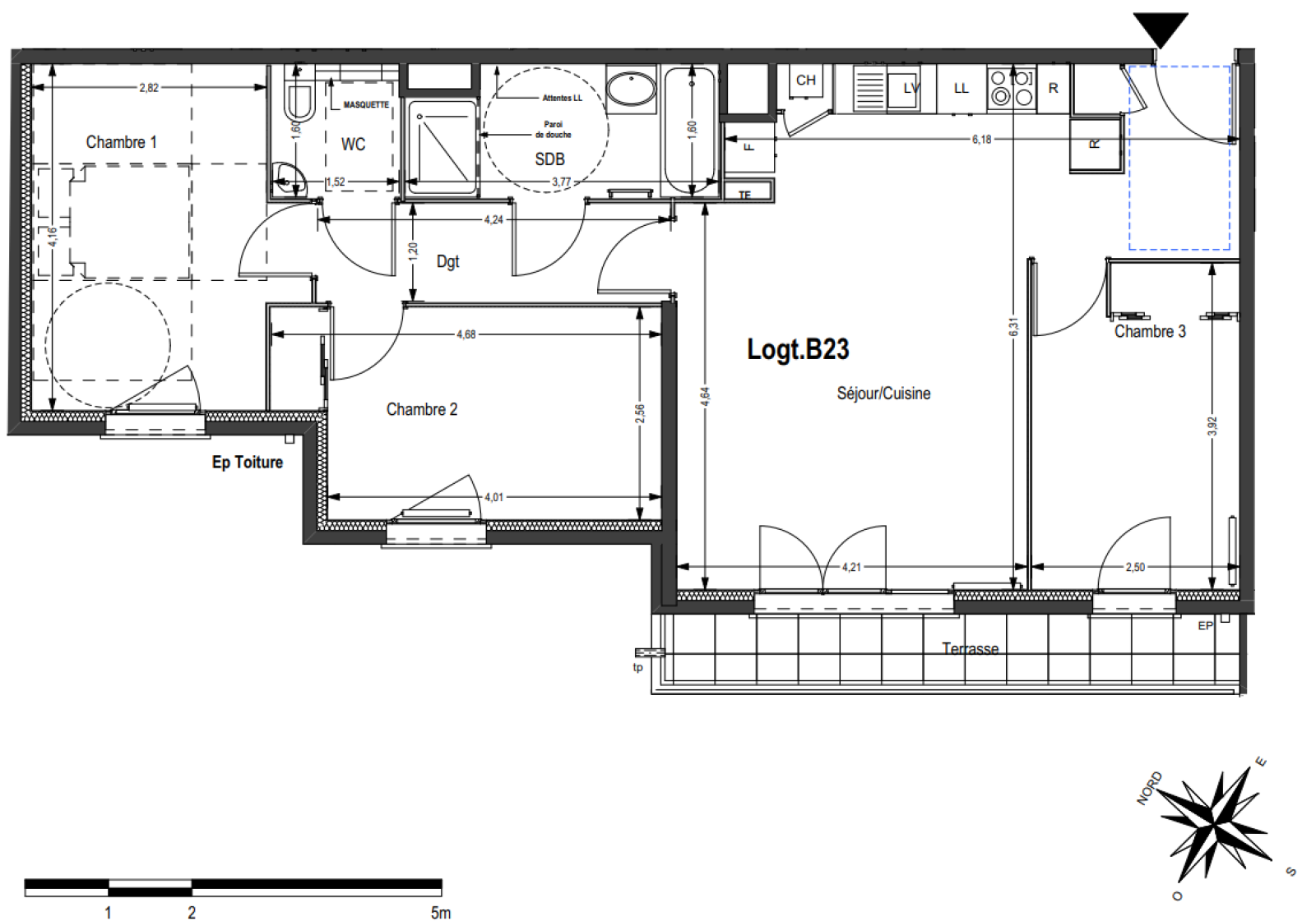
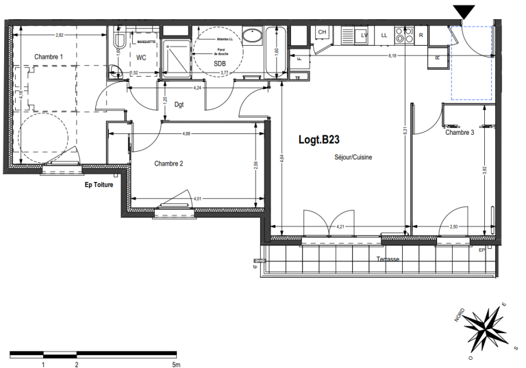
Appartement 4 pièce(s) 3 chambre(s) 77.49 m²

Balcon
2
272 718 €
Réf PP-3224 - B23

APPARTEMENT 4 PIÈCES AVEC TERRASSE - 2ème étage / 3 PRADO-EUROMED IMMOBILIER vous propose ce bel appartement de 77 m2 avec terrasse, au 2è étage d'un immeuble de 2024 proche de la faculté St Jérôme, dans une rue calme. Orienté Ouest, il est composé d'un salon avec cuisine ouverte, 3 chambres, dont 2 donnant sur la terrasse, 1 salle de bain avec baignoire et douche, d'un WC indépendant. 2 places de parking en sous-sol sont inclus dans le prix. Carrelage au sol dans toutes les pièces Chauffage individuel électrique Aucun travaux à prévoir, en dehors de la cuisine à équiper

Envie d'en savoir plus sur cet appartement en vente ? Prenez contact avec votre agent : Gérard MOUGENOT 06.75.01.85.57 gerard.mougenot@prado-euromed.com - (EI) - RSAC 434199063 ou Ouahib MEDDOUN 07.87.10.29.47 ouahib.meddoun@prado-euromed.com EI - RSAC 378164149 - Les informations concernant les risques liés à ce bien sont disponibles sur georisques.gouv.fr. - Présentation d'une pièce d'identité requise selon l'article L.561.5 du Code Monétaire et Financier pour l'organisation de la visite.

Bilan énergétique

Diagnostics énergetiques
A propos de ce bien Caractéristiques de ce bien
  • Surface 77,49 m²
  • 3 chambre(s)
  • construit en 2024
  • 2 parking(s)
  • 2ème étage
  • 4 étage(s)
  • balcon

Financier

Informations financières
Prix de vente 272 718 € Les honoraires d'agence seront intégralement à la charge du vendeur

Autour du bien

Découvrez le quartier
  • Commerces et santé
  • Loisirs
  • Ecoles
  • Transports
  • Pratique

Simulation

Calcul des mensualités
* Champs obligatoires
TEAM MARSEILLE PRADO-EUROMED Agence