Marseille (13007)

Appartement 5 pièce(s) 4 chambre(s) 96.31 m²

1
Ascenseur
320 000 €
Réf KB-3488

A rénover - 4 chambres dans une petite rue au calme !


En 2ème ligne sur le Vieux-Port dans le quartier agréable de St Victor, secteur prisé du 7ème arrondissement et emplacement privilégié à 10 minutes à pied de la plage des Catalans et 5 minutes du métro Vieux-Port, je vous propose au sein d'une copropriété des années 60, un appartement à rénover.


D'une surface totale au sol de 97m2, cet appartement traversant exposé EST/OUET bénéficie d'une jolie lumière grâce aux grandes fenêtres dans chacune des pièces malgré son premier étage.


Avec ses 4 chambres, cet appartement rare dans ce périmètre très recherché, répond efficacement à un projet familial ou à une colocation. Possibilité de transformer l'appartement en T4 et de bénéficier d'un salon-séjour de 29m2.


A proximité : crèches, écoles publiques et privés, lycée Rempart, cafés et restaurants, commerces, sites touristiques, métro M1 (à 2 stations de la gare St Charles) et Bus 81/83, accès aux autoroutes Est et Littoral


Les informations sur les risques auxquels ce bien est exposé sont disponibles sur le site Géorisques

Bilan énergétique

Diagnostics énergetiques
A propos de ce bien Caractéristiques de ce bien
  • Surface 96,31 m²
  • carrez 87,11 m²
  • séjour 16 m²
  • 4 chambre(s)
  • 1 salle(s) de bain
  • cuisine séparée
  • Chauffage individuel : radiateur (electrique)
  • exposition Est-Ouest
  • 1er étage
  • 5 étage(s)
  • ascenseur
  • cave
  • interphone

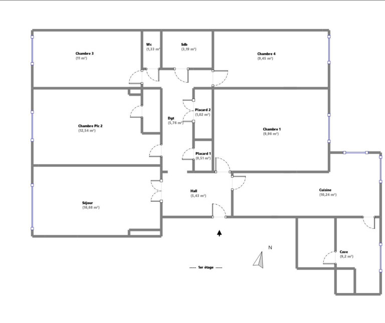
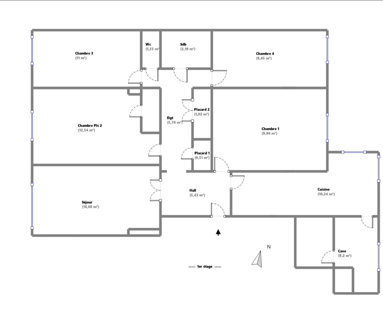
Composition

Composition de ce bien

Etage 1

  • salle de bain 3.19 m²
  • chambre 11 m²
  • salon/sejour 16.68 m²
  • chambre 9.96 m²
  • chambre 9.45 m²
  • cuisine 10.24 m²
  • cellier 9.2 m²
  • chambre 12.54 m²

Info copro

Copropriété
  • Copropriété Oui
  • Nombre de lots 102

Financier

Informations financières
Prix de vente honoraires TTC inclus 320 000 €

Autour du bien

Découvrez le quartier
  • Commerces et santé
  • Loisirs
  • Ecoles
  • Transports
  • Pratique

Simulation

Calcul des mensualités
* Champs obligatoires
TEAM MARSEILLE PRADO-EUROMED Agence