+8
Marseille (13008)

Maison 5 pièce(s) 4 chambre(s) 350 m²

3
200 m²
2
Réf KS-1862
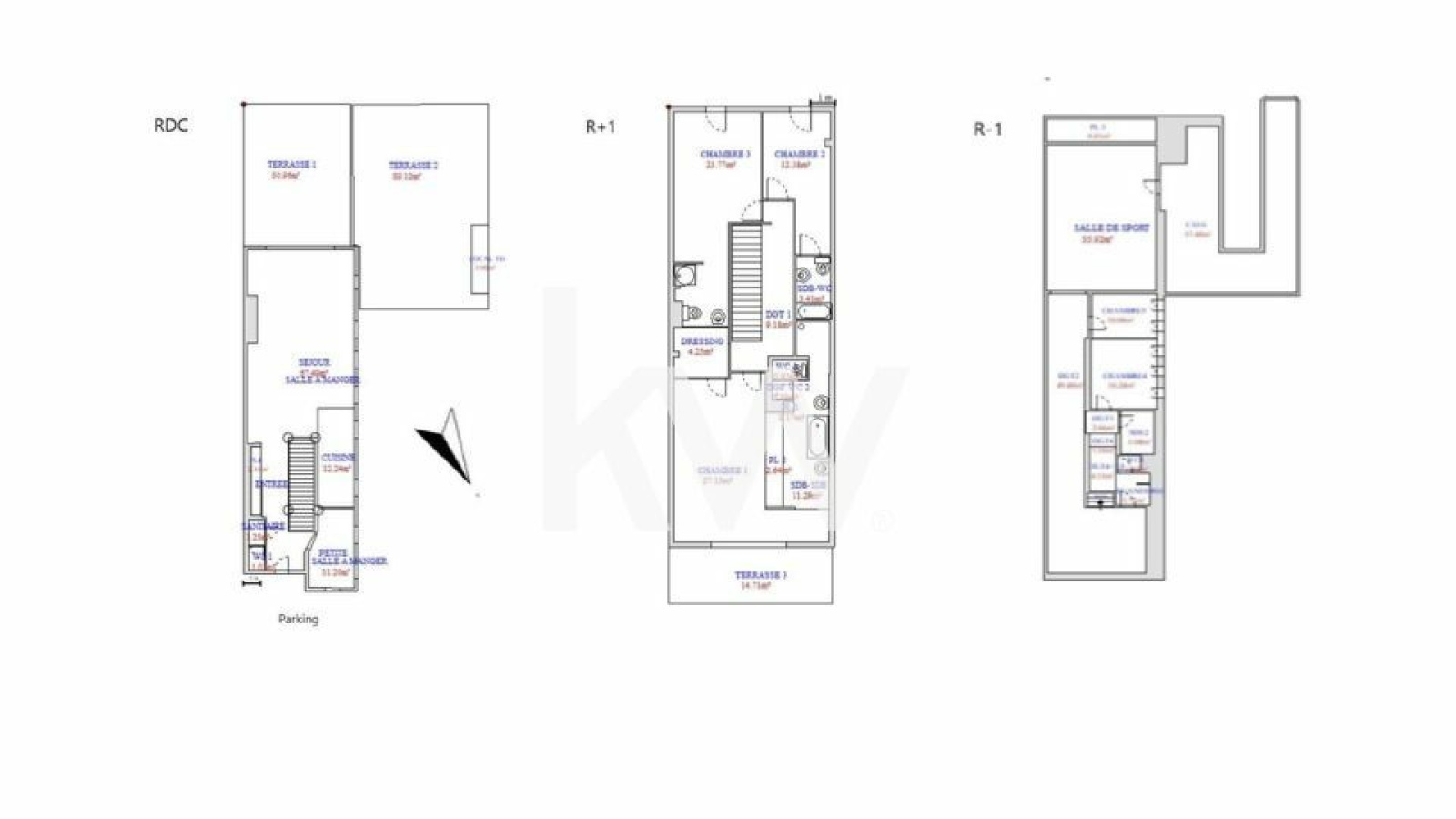
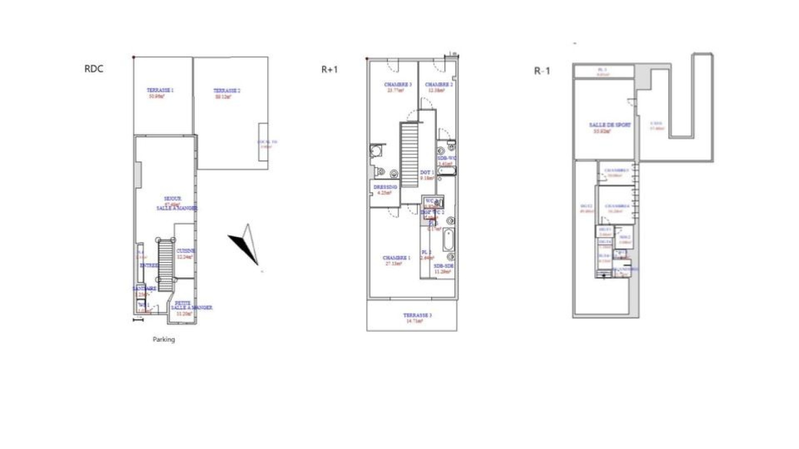
A quelques pas de la mer, en plein c?ur du quartier de la Vieille-Chapelle entre Bonneveine et La Pointe-Rouge, venez découvrir cette spacieuse maison de 345 m² (loi carrez). Pour les beaux jours, profitez d'un extérieur de plus de 140 m² disposant d'un agréable couloir de nage. Entièrement refaite, elle est disposée comme suit : Au rez-de-chaussée, vous trouverez un grand séjour d'environ 70 m² avec cheminée donnant sur la terrasse, une cuisine ouverte, aménagée et équipée ainsi qu'un espace bureau. L'étage est composé d'une grande suite parentale lumineuse de 27m² (baignoire & douche) avec terrasse offrant une vue dégagée sur les collines de Marseilleveyre et 2 chambres avec salle de bains. Une salle de sport de 56 m², deux chambres, une SDB et une buanderie complètent ce bien. Maison en copropriété. 3 lots. Côté stationnement, cette maison dispose de deux places de parking. Pour toute demande d'information, merci de me contacter. KEVIN SIKSIK Tel: 06.50.40.18.28 Mail: kevin.siksik@kwfrance.com RSAC N° 901394197

Bilan énergétique

Diagnostics énergetiques
A propos de ce bien Caractéristiques de ce bien
  • Surface 350 m²
  • terrain 200 m²
  • 4 chambre(s)
  • 3 salle(s) de bain
  • 2 parking(s)

Financier

Informations financières
Les honoraires d'agence seront intégralement à la charge du vendeur  
Charges 600 €
Taxe foncière annuelle 3 600 €

Autour du bien

Découvrez le quartier
  • Commerces et santé
  • Loisirs
  • Ecoles
  • Transports
  • Pratique

Simulation

Calcul des mensualités
* Champs obligatoires
TEAM MARSEILLE PRADO-EUROMED Agence