+28
Marseille (13009)

Maison 4 pièce(s) 3 chambre(s) 112 m²

2
549 m²
2
Réf KSGT-1836_1
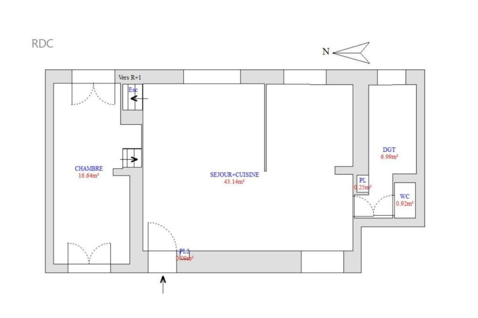
MAISON 4 PIÈCES AVEC PISCINE ET JARDIN AMENAGE En vente : dans le 09e arrondissement de Marseille (13009) venez découvrir cette maison récente non mitoyenne de 4 pièces de 112 m² sur une parcelle de 549 m² avec jardin et piscine. Au rez-de-chaussée, vous disposerez d'un bel espace salon/cuisine semi ouverte avec buanderie attenante et toilettes avec accès sur deux terrasses, ainsi qu'une suite parentale avec coin douche. A l'étage, deux chambres avec dressing ainsi qu'une salle de bains, baignoire + douche, et toilettes séparés. En extérieur, des espaces arborés soignés et une piscine récente, sans vis à vis, parfaitement exposée. Côté stationnement, vous disposerez de deux places de parking privatives. Si vous recherchez le calme, la sécurité avec un réel extérieur dans un quartier résidentiel, tout en étant proche des axes de circulation, commerces et établissements scolaires publics et privés, cette maison est faite pour vous ! Pour tout complément d'information, merci de contacter Georgia TETELBOM / RSAC N° 913852042 Tél : 06.61.83.45.41 georgia.tetelbom@kwfrance.com Kevin SIKSIK / RSAC N° 901394197 Tel: 06.50.40.18.28 kevin.siksik@kwfrance.com

Bilan énergétique

Diagnostics énergetiques
A propos de ce bien Caractéristiques de ce bien
  • Surface 112 m²
  • terrain 549 m²
  • 3 chambre(s)
  • 2 salle(s) de bain
  • 2 parking(s)

Financier

Informations financières
Les honoraires d'agence seront intégralement à la charge du vendeur  
Taxe foncière annuelle 2 000 €

Autour du bien

Découvrez le quartier
  • Commerces et santé
  • Loisirs
  • Ecoles
  • Transports
  • Pratique

Simulation

Calcul des mensualités
* Champs obligatoires
TEAM MARSEILLE PRADO-EUROMED Agence