Marseille (13015)

Terrain 5 pièce(s) 4 chambre(s) 270 m²

4
600 m²
2
Réf KS-2038
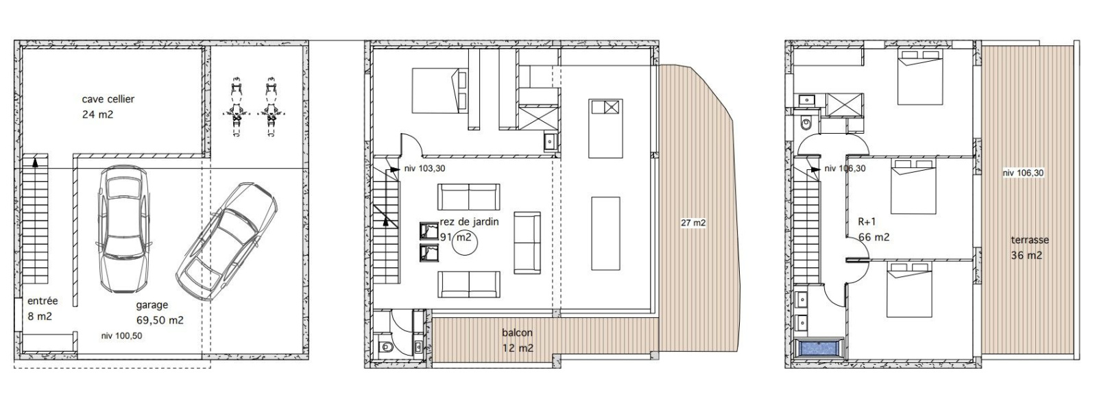
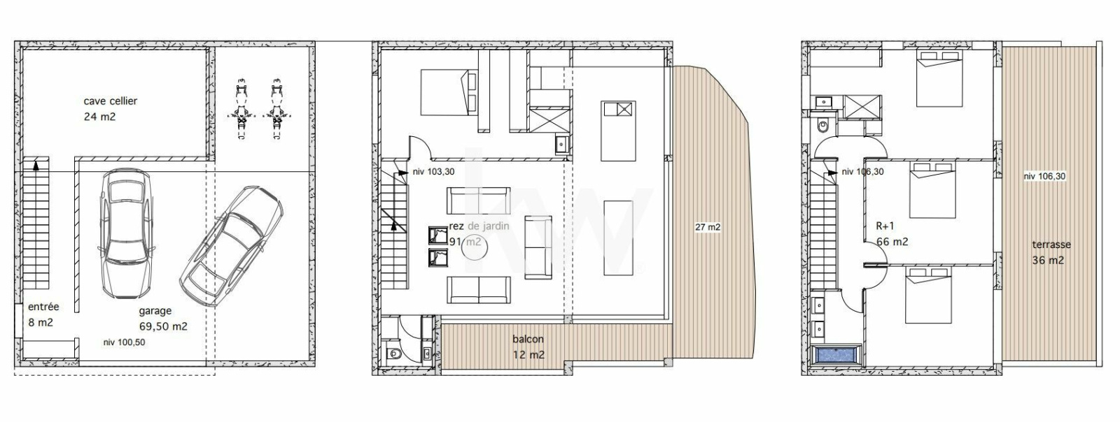
TERRAIN PURGE ZONE UC3 PROJET : MAISON 5 PIÈCES de 270M² AVEC PISCINE ET GARAGE Je vous présente un terrain de 600m² purgé de tous recours, avec un projet de maison de 5 pièces de 270 m² de surface dans le 15e arrondissement de Marseille (13015). Elle comportera quatre chambres, une cuisine aménagée et quatre salles de bains. Le terrain s'étend sur 600 m² avec piscine. La maison dispose d'un garage pour deux véhicules et une grande cave. Si vous souhaitez la découvrir, je vous invite à me contacter : Kévin SIKSIK Tel: 06.50.40.18.28 Mail: kevin.siksik@kwfrance.com RSAC N° 901394197

Bilan énergétique

Diagnostics énergetiques
A propos de ce bien Caractéristiques de ce bien
  • Surface 270 m²
  • terrain 600 m²
  • 4 chambre(s)
  • 4 salle(s) de bain
  • cuisine aménagée

Financier

Informations financières
Les honoraires d'agence seront intégralement à la charge du vendeur  

Autour du bien

Découvrez le quartier
  • Commerces et santé
  • Loisirs
  • Ecoles
  • Transports
  • Pratique

Simulation

Calcul des mensualités
* Champs obligatoires
TEAM MARSEILLE PRADO-EUROMED Agence