+3
Sari-Solenzara (20145)

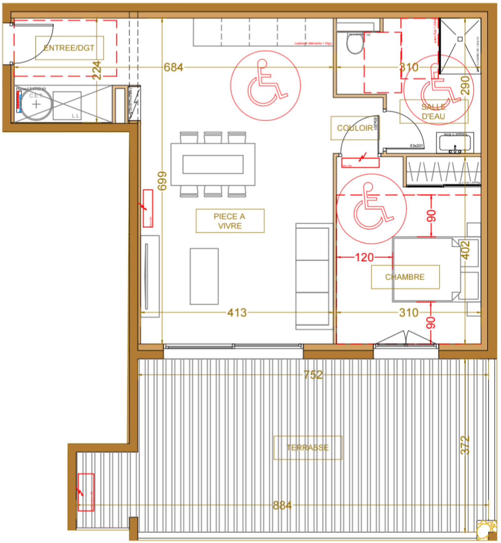
Appartement 2 pièce(s) 1 chambre(s) 56 m²

1
Ascenseur
1
289 000 €
Réf LP-3492-104

Sur les hauteurs de la côte des nacres de Solenzara, à 200 mètres du port des commerces et des plages, cette très luxueuse residence en rooftop ultra chic et moderne offrira une vue panoramique sur la mer et le port avec terrasse panoramique. 1 place de parking incluse et cuisine sur mesure d'ébéniste offerte. Configuration et aménagement sur mesure possible. Possibilité de garage boxe et de cave.


Cet appart t2 en vente est intégralement pensé en prestations extraordinaires dernier cri, normes RT2012. Les sols interieurs seront en travertin 60x40 et les extérieurs en dalles sur plots soit 60x40 soit 60x60. La porte d'entrée est une porte blindée à 12 points. La chambre sera équipée de dressings, éventuellement aménageables en suite parentales et donnera sur la terrasse face à la mer et au port. Le plan d'aménagement est un exemple, mais il est intégralement personnalisable. Pour conserver un style traditionnel typique Corse, les fenêtres sont des ouvrants à la française, avec des volets en alu électrique. La salle d'eau elle est pensée en douche à l'italienne, avec cumulus thermodynamique (système de pompe à chaleur), miroir led, et meuble vasque. Les gardes corps des terrasses seront complètement en alu, ce qui n'occulte pas la vue et assure une sensation très vertigineuse. Les éclairages seront en spots led, possibilité d'installation domotique télécommandée depuis les mobiles.


La résidence implantée dans le maquis sauvage et parfumé de Solenzara et à 200 mètres du port des commerces et des plages sera intégralement arborée d'essences locales (lavandes, cyprès, pins...) pour garantir une sensation traditionnelle et des fragrances d'exception dans ce joli cocon de luxe.


Ce type de logement est parfait pour accueillir une famille, en résidence secondaire ou en résidence locative. Pour ce qui est du rendement locatif, il est estimé à partir de 9000€ par an en location à l'année, et 25 000€ par an en location temporaire.


Pour visiter cet appartement ou découvrir notre résidence d'exception, votre agence immobilière TEAM MARSEILLE PRADO-EUROMED se tient à votre disposition. Contact immédiat : Mme Paccioni, 06 35 96 88 98 lilas.paccioni@prado-euromed.com rsac d'Ajaccio 917563439

Les informations concernant les risques liés à ce bien sont disponibles sur georisques.gouv.fr.- Présentation d'une pièce d'identité requise selon l'article L.561.5 du Code Monétaire et Financier pour l'organisation de la visite.


Zone soumise à une obligation légale de débroussaillement.
Les informations sur les risques auxquels ce bien est exposé sont disponibles sur le site Géorisques

Bilan énergétique

Diagnostics énergetiques
A propos de ce bien Caractéristiques de ce bien
  • Surface 56 m²
  • carrez 56 m²
  • séjour 29 m²
  • 1 chambre(s)
  • 1 salle(s) d'eau
  • cuisine américaine (équipée)
  • Chauffage individuel : air pulsé (climatisation)
  • 1 parking(s)
  • exposition Est
  • 1er étage
  • 3 étage(s)
  • ascenseur
  • vue Mer
  • visiophone
  • interphone
  • accès handicapé

Info copro

Copropriété
  • Copropriété Oui
  • Lot n° 104
  • Nombre de lots 1
  • Plan de sauvegarde Non
  • Statut du syndic Pas de procédure en cours

Financier

Informations financières
Prix de vente 289 000 € Les honoraires d'agence seront intégralement à la charge du vendeur

Autour du bien

Découvrez le quartier
  • Commerces et santé
  • Loisirs
  • Ecoles
  • Transports
  • Pratique

Simulation

Calcul des mensualités
* Champs obligatoires
TEAM MARSEILLE PRADO-EUROMED Agence